常州莱想自动化设备有限公司 机器人码垛生产线的专业厂家,从事自动定量配料包装,码垛等自动化包装生产线的设计制造!

全国咨询热线:

chjg8800@163.com

产品中心

products

联系方式:

chjg8800@163.com

  • 脉冲袋式除尘器

脉冲袋式除尘器

关键词:脉冲袋式除尘器
所属分类:气力输送系统
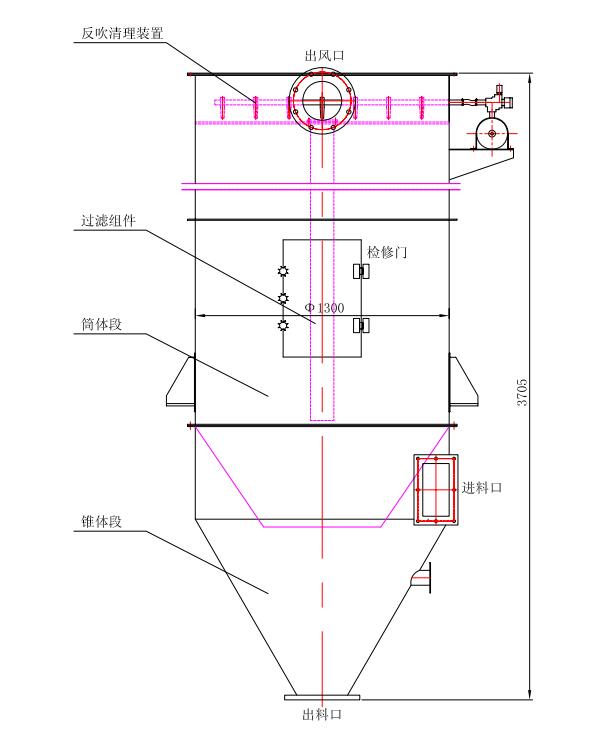
产品概述:脉冲袋式除尘器应用范围广泛应用于冶金、铸造、矿山、化工、医药、饲料、建材、粮食加工等行业的通风除尘和粉尘回收。 工作原理本产品室含尘气体净化的新型设备。它采用了适用于较高温度和“208”工业涤纶绒布作滤袋,净化效果高达99.5%。结构紧凑、占地面积小、滤袋寿命…
在线订购
产品详情 图片集锦

脉冲袋式除尘器

应用范围

  广泛应用于冶金、铸造、矿山、化工、医药、饲料、建材、粮食加工等行业的通风除尘和粉尘回收。

 

工作原理

  本产品室含尘气体净化的新型设备。它采用了适用于较高温度和“208”工业涤纶绒布作滤袋,净化效果高达99.5%。结构紧凑、占地面积小、滤袋寿命长、运行稳定可靠、维护保养方便、处理含尘气体温度可高达120℃。含尘气流从气口进入下箱体后,部分沉淀,轻微粉尘浮动时背滤袋阻留,净化空气透过滤袋,经文氏管进入箱体,从出气口排出。积附在滤袋外壁的粉尘不断增加,当阻力在规定的范围内(一般为80~120毫米水柱),就要清除积附在滤袋外壁的粉尘,清灰是由控制器顺序触发各控制阀,使气包内的喷吹管孔袋在一瞬间急剧膨胀并伴随着气流的反作用,抖落的粉尘落入灰门经排灰阀排出机体。

 

技术参数

型号/技术性能

GMC24

GMC36

GMC48

GMC60

GMC72

GMC84

GMC96

GMC120

过滤面积(㎡)

18

27

36

45

54

63

72

90

滤袋数量(piece)

24

36

48

60

72

84

96

120

过滤风速(m/min)

2-4

2-4

2-4

2-4

2-4

2-4

2-4

2-4

处理风量(m/min)

2160-4300

3250-6480

4320-8630

5400-10800

6450-12900

7550-15100

8650-17300

10800-20800

^大外形尺寸

 

长,宽,高

1025

1425

1820

2225

2625

3025

3585

4385

宽1678高3660

 

清灰装置

脉冲阀数量

4

6

8

10

12

14

16

20

耗气量

0.07-0.15

0.11-0.22

0.15-0.30

0.18-0.37

0.22-0.44

0.25-0.50

0.29-0.56

0.37-0.73

压缩空气压力

5-7不低于4


脉冲袋式除尘器示意图:


  • 脉冲袋式除尘器
相关文章
相关产品
  • 密相输送
    密相输送
  • 稀相输送
    稀相输送
  • 除尘器
    除尘器
  • 脉冲袋式除尘器
    脉冲袋式除尘器
  • 旋风分离器
    旋风分离器
  • 正压输送
    正压输送
  • 真空输送设备
    真空输送设备
  • 插板阀
    插板阀
Top